Главная
Гринлос
Септики ГРИНЛОС Аква
ГРИНЛОС Аква 6 низкий корпус

ГРИНЛОС Аква 6 низкий корпус в Волгограде

Данная модель имеет следующие конфигурации:

ГРИНЛОС Аква 6 (стандартная)

ГРИНЛОС Аква 6 низкий корпус (низкий корпус с насосом)

ГРИНЛОС Аква 6 Пр (с насосом)

ГРИНЛОС Аква 6 Миди (удлиненная)

ГРИНЛОС Аква 6 Пр Миди (удлиненная с насосом)

ГРИНЛОС Аква 6 Лонг (удлиненная)

ГРИНЛОС Аква 6 Пр Лонг (удлиненная с насосом)

ГРИНЛОС Аква 6 Пр Супер Лонг (удлиненная с насосом)

В сравнение
Технические характеристики ГРИНЛОС Аква 6 низкий корпус:
  • Количество пользователей: 6 человек
  • Залповый сброс: 540 л
  • Объём переработки: 1.2 м3/сут
  • Энергопотребление: 2.1 кВт/сут
  • Диаметр труб (вх/вых): 110/110 мм
  • Глубина залегания подводящей трубы: до 60 см
  • ДхШхВ: 2.2х1.5х1.2 м
  • Способ отвода: самотечный
  • Диаметр горловины: 930 мм
  • Высота от верха крышки до подводящей трубы: 600 мм
  • Высота крышки: 50 мм
  • Вес: 126 кг
  • Проживание: сезонное
  • Наличие: на складе
  • человек x6
  • краны x3
  • туалеты x2
  • души/ванны x1
  • стиральные машины x1

В наличии

Цена: 185 500 ₽
Смета на монтаж под ключ

Доставим и установим септик ГРИНЛОС Аква 6 низкий корпус за 1 день по цене ниже конкурентов и скидкой на монтаж до 29%. Звоните!

Преимущества над конкурентами

Фильтр грубой очистки

В базовую комплектацию ГРИНЛОС Аква 6 низкий корпус входит фильтр грубой очистки, с помощью которого мусор, попадающий со стоками, не просачивается в очищенную воду.

Защита электрооборудования

Отличительной особенностью септиков АКВА является расположение короба с электрооборудованием за пределами корпуса септика, что предотвращает затопление и выход из строя электроники.

Для высоких грунтовых вод

Высота септиков ГРИНЛОС Аква 6 низкий корпус всего 1,2 м, что делает их наиболее подходящим вариантом для местности с высоким уровнем грунтовых вод. Такой корпус прост в установке и обслуживании.

Наличие биозагрузки

Биозагрузка, с помощью которой стоки очищаются более тщательно, входит в базовую комплектацию септика ГРИНЛОС Аква 6 низкий корпус.

Крепкие грунтозацепы

Чтобы предотвратить всплытие на обводненных участках, корпус ГРИНЛОС Аква 6 низкий корпус оснащен крепкими грунтозацепами, которые не сломаются, даже при сильном давлении почвы.

Комплектация

Септик изготавливается в едином цилиндрическом корпусе и поставляется полностью укомплектованным и готовым к работе.

В комплект поставки септика ГРИНЛОС Аква 6 низкий корпус входят следующие элементы:

  • Корпус ГРИНЛОС Аква 6 низкий корпус
  • Крышка
  • Съемный биофильтр
  • Рассекатель
  • Сотовая биозагрузка
  • Таймер
  • Рециркуляционный насос

Эксплуатационная документация, в том числе:

  • Технический паспорт
  • Технический паспорт рециркуляционного насоса
  • Сертификат соответствия ГОСТ Р ИСО 9001-2015 (ISO 9001:2005)
  • Сертификат соответствия системе ГОСТ Р
  • Декларация соответствия ЕАС

Особенности

ГРИНЛОС Аква 6 низкий корпус - это самотечная модель септика с уменьшенной высотой корпуса. Обладает объемом залпового сброса 540 л. и производительностью 1,2 м3/сутки, что делает его подходящим для домов, в которых число жильцов не превышает 6 условных пользователей.

Отличительными особенностями септика ГРИНЛОС Аква 6 низкий корпус являются:

  • Тип сброса - самотечный. Это значит, что очищенная вода сливается по трубе, которая идет под наклоном в сторону точки сброса. Применить это решение можно при наличии дренажного колодца, глубокого оврага, поля фильтрации, где вода уходит в грунт и не застаиваться.
  • Высота корпуса 1200 мм, что позволяет монтировать септик в сложных условиях грунта, высокий уровень грунтовых вод, плывуны, торфяной, скальный грунт и т. д

Модификации ГРИНЛОС Аква 6 низкий корпус

Характеристики ГРИНЛОС Аква 6 ГРИНЛОС Аква 6 низкий корпус ГРИНЛОС Аква 6 Пр ГРИНЛОС Аква 6 Миди ГРИНЛОС Аква 6 низкий корпус Пр ГРИНЛОС Аква 6 Пр Миди ГРИНЛОС Аква 6 Лонг ГРИНЛОС Аква 6 Пр Лонг ГРИНЛОС Аква 6 Супер Лонг ГРИНЛОС Аква 6 Пр Супер Лонг
Глубина залегания подводящей трубы 60 см 60 см 60 см 100 см 60 см 100 см 120 см 120 см 140 см 140 см
Тип сброса самотечный самотечный принудительный самотечный принудительный принудительный самотечный принудительный самотечный принудительный
Размеры 1.5 x 1.5 x 1.8 м 2.2 x 1.5 x 1.2 м 1.5 x 1.5 x 1.8 м 1.5 x 1.5 x 2.2 м 2.2 x 1.5 x 1.2 м 1.5 x 1.5 x 2.2 м 1.5 x 1.5 x 2.4 м 1.5 x 1.5 x 2.4 м 1.5 x 1.5 x 2.6 м 1.5 x 1.5 x 2.6 м
Цена септика 174 500 руб. 185 500 руб. 187 500 руб. 189 500 руб. 197 500 руб. 202 500 руб. 227 500 руб. 240 500 руб. 247 500 руб. 262 500 руб.
Цена под ключ

Преимущества

Среди основных преимуществ ГРИНЛОС Аква 6 низкий корпус можно выделить следующие:

  • Малый вес, при большом запасе прочности
  • Высокая степень переработки стоков (до 98%)
  • Низкий уровень энергопотребления
  • Бесшумность при работе
  • Благодаря конструктивным особенностям не имеет ограничений по сбросу
  • Управление насосами вынесено за пределы станции
  • Отсутствие дорогостоящего оборудования внутри станции.
  • Не требует постоянного проживания
  • Не требует дополнительных навыков при монтаже и обслуживании
  • Не требует расходных материалов (биопрепаратов) и регулярного обслуживания (установил – забыл).

Принцип работы

Процесс расщепления и переработки органических загрязнений происходят в результате жизнедеятельности аэробных микроорганизмов, условия для жизнедеятельности которых создает септик ГРИНЛОС Аква 6 низкий корпус.

Естественный природный процесс оптимизирован путем аэрации стоков и установки биофильтра (специального устройства, на котором образуется биопленка из микроорганизмов).

Создание этих условий требует обособленности процессов, разделения стоков по изолированным резервуарам и их последовательного перетекания.

Станция сконструирована таким образом, что все камеры, в которых происходит отстаивание/разделение и первичное осветление стоков объединены в одном корпусе цилиндрической или овальной формы.

ГРИНЛОС Аква 6 низкий корпус изготавливаются из полипропилена чешского производства. Нижний уровень разделен на четыре отсека со специальными технологическими переливами. Перетекая из одного отстойника в другой, стоки проходят первоначальный процесс отстаивания, усреднения стоков, отделения нерастворимых фракций (жиров и т.д.), которые остаются в первом отсеке. При этом уже в первом отсеке начинается очистка стоков свободным активным илом. Затем, из третьего отсека, стоки посредством дренажного насоса подаются на верхний уровень, на специальный разбрызгиватель, через который происходит орошение биофильтра.

В процессе орошения происходит насыщение стоков кислородом, на специальном ворсистом материале, из которого изготовлен биофильтр, развиваются колонии микробов, питательной средой для которых является органика стоков. Форма ворсинок позволяет создать большую площадь для развития микроорганизмов, по сути представляя собой поле фильтрации в «свернутом», компактном виде. Омывая биофильтр, стоки смывают умершие бактерии и обеспечивают зарождающиеся питательной средой.

После биофильтра стоки, обогащенные кислородом и бактериями, возвращаются в первую, вторую и третью камеры. Использование биофильтра помогает избежать образования избыточного количества омертвевшего ила, увеличивает временной интервал между обслуживанием септика. Дренажный насос управляется надежным механическим таймером, включение, как правило, происходит на пятнадцать минут в час. Благодаря регулярной циркуляции стоков, станция не требует постоянного проживания.

Из третьей камеры, после многочисленных циклов очистки, условно чистая техническая вода, через специальный перелив – успокоитель попадает в четвертый, финишный отсек, откуда, в зависимости от модели (самотечная или принудительная) выводится наружу (на грунт, в дренажную или ливневую канаву и т.д.). Благодаря специальной системе переливов активный ил скапливается в первом отсеке.

Монтаж

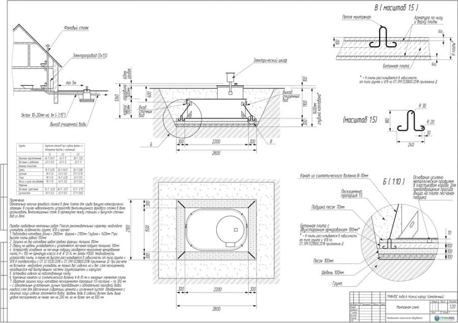
Перед непосредственным монтажом ГРИНЛОС Аква 6 низкий корпус специалисты осуществляют подготовку котлована. Его размеры определяются конструктивными особенностями выбранной модели оборудования.

По боковым стенкам корпуса должно быть сохранено свободное расстояние до грунта не менее 250 мм. Дно котлована нуждается в более тщательной подготовке. Его подвергают выравниванию с последующей засыпкой слоем песка, обладающим толщиной в пределах 10-15 см. Пазухи котлована подвергают обратной засыпке при помощи песка, который послойно поливают водой. Прежде чем приступить к аналогичным работам, емкость оборудования на четверть заполняют водой. Впоследствии количество воды внутри емкости увеличивают соразмерно уровню засыпки песком наружных стенок. Каждые 200 мм песка подвергаются ручному уплотнению.

Поверх корпуса оборудования выполняется песчаная обсыпка на высоту 150-300 мм. Для подсоединения оборудования к внутренней канализационной магистрали применяют канализационные трубы, предназначенные для эксплуатации в наружной канализационной системе, обладающие диаметром 110мм.

Уклон труб при создании трубопроводной сети должен неизменно составлять 2,5-3 см на каждый метр расстояния.

Способы отвода очищенной воды

Монтаж с самотечным отводом очищенных сточных вод в дренажную канаву. Подходит для хорошо впитывающих грунтов (песок, супесь) и низком уровне грунтовых вод.
При выборе данного способа водоотведения необходимо обеспечить свободное отведение очищенной воды от выпуска трубопровода, необходимо полностью исключить подтопление выпуска. В противном случае, в летний период, трубопровод будет заиливаться и засоряться, а септик ГРИНЛОС Аква 6 низкий корпус будет подвержена обратному затоплению водами с точки сброса. В зимний период, трубопровод и точка сброса будут промерзать. Такие условия работы оборудования приведут к аварии.

Монтаж с отводом очищенных сточных вод в дренажный элемент. Этот вариант позволит в значительной степени сэкономить место на участке, однако дренажный элемент в большей степени подвержен затоплению в условиях подъема грунтовых вод.

Монтаж с отводом очищенных сточных вод в фильтрующий колодец. Подходит для хорошо поглощающих грунтов (песок, супесь) и низком уровне грунтовых вод.

Колодец поглощения может быть выполнен из бетонных колец или при помощи пластикового колодца с перфорированным основанием и стенками. При монтаже колодца поглощения на выпуск трубы рекомендуется смонтировать обратный клапан для защиты ГРИНЛОС Аква 6 низкий корпус от обратного затопления в периоды активного снеготаяния или в дождливое межсезонье. Непосредственно под выпуском отводящей трубы, рекомендуется смонтировать аварийный насос, для дополнительной защиты Станции от обратного затопления из колодца поглощения

Обслуживание

Обслуживание септиков ГРИНЛОС Аква 6 низкий корпус производится один раз в год по следующему регламенту:

  • Перекройте поступающие на очистку стоки.
  • Откачайте 2/3 скопившегося осадка со дна и 3 отсеков (ассенизаторской машиной или самостоятельно с помощью дренажного насоса). При этом, если вы откачаете ил целиком из 2 и 3 камер, то станция будет выходить на нормальный режим работы еще несколько недель, поэтому рекомендуется оставлять 20-30% ила.
  • Промойте стенки всех камер водой под напором.

Монтажные схемы ГРИНЛОС Аква 6 низкий корпус

Документация

Анна – менеджер по подбору систем канализации

Нужна помощь в подборе септика?

Наши специалисты бесплатно и быстро подберут для вас необходимую модель.

Даю согласие на обработку персональных данных

Отзывы

Оставьте отзыв о данном товаре

Выполненные работы

Отзывы о нас на Яндекс

Яндекс Отзывы

Магнум Траст

5,0

77 оценок

Похожие товары:
В сравнение

174 500 руб.

?Самый популярный септик по итогам 3х месяцев продаж, имеющий только положительные отзывы покупателей.x
В сравнение

206 000 руб.